0 0 N K Street

< back to properties

gallery view
map view

0 0 N K Street

Livermore, CA94550

| MLS# 41116257

Tract: LIVERMORE

For Sale $799,000

Monica Ruggieri

Monica Ruggieri

AGENT | CAL BRE# 01828186


949.300.8600 |

Description

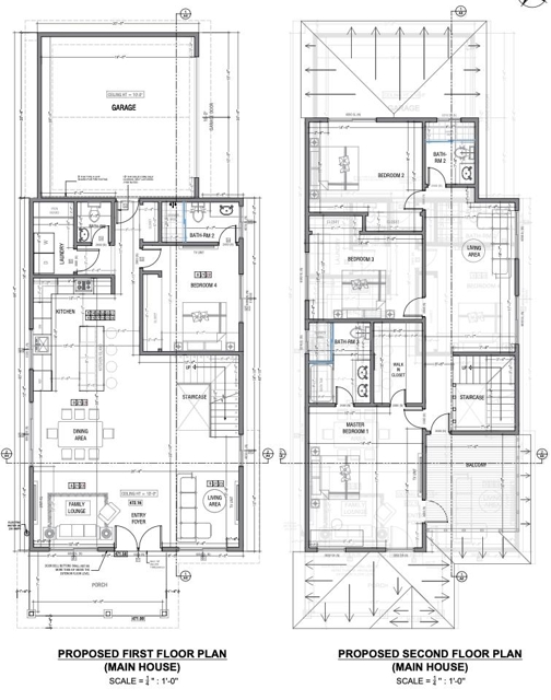
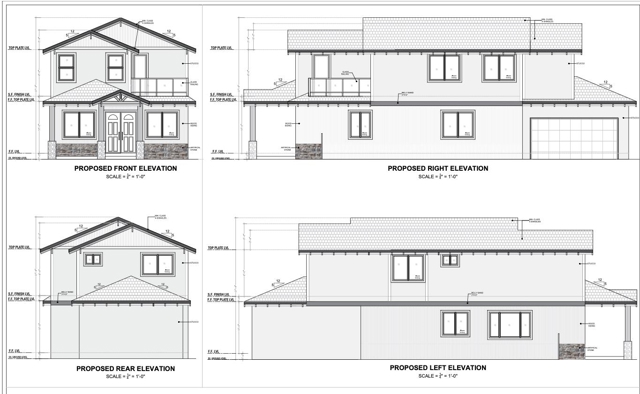
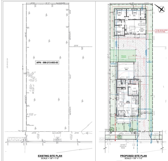
*Plans Approved* **Two Homes, Main House + ADU** SHOVEL-READY DEVELOPMENT OPPORTUNITY IN PRIME LIVERMORE LOCATION! This is a significant investment advantage—a fully approved, 7,500 square foot rectangular lot (50 ft x 150 ft) with ready-to-build plans for a massive dual-unit residence. Save months of bureaucratic delay, cost, and risk by stepping into a project that is already entitled. The approved plans feature a total of 7 bedrooms and 5.5 bathrooms across both units. The main single-family home is a spacious 4-bedroom, 3.5-bath, 2,368 sq ft design, perfect for a modern family or high-end resale. The separate, detached Accessory Dwelling Unit (ADU) is an exceptional income producer, featuring 3 bedrooms, 2 bathrooms, and 1,162 sq ft, maximizing rental value (future rent estimated $3,600 - $3,800) or offering ideal multi-generational living space. Located in a sought-after area, adjacent to 732 N K St, you are minutes from downtown Livermore's acclaimed restaurants and vibrant wine country culture. This rare combination of a large lot and pre-approved, high-density plans offers an unparalleled opportunity for immediate development and maximum return on investment in a perpetually strong market. Start building your equity and legacy today!

Facts

| Built in | Lot Size: 7500.00 sqft | HOA Dues: $0/month

Features

Listing provided by Remy Fortier, EXP Realty of California, Inc

Based on information from California Regional Multiple Listing Service, Inc. as of February 11, 2026. This information is for your personal, non-commercial use and may not be used for any purpose other than to identify prospective properties you may be interested in purchasing. Display of MLS data is usually deemed reliable but is NOT guaranteed accurate by the MLS. Buyers are responsible for verifying the accuracy of all information and should investigate the data themselves or retain appropriate professionals. Information from sources other than the Listing Agent may have been included in the MLS data. Unless otherwise specified in writing, Broker/Agent has not and will not verify any information obtained from other sources. The Broker/Agent providing the information contained herein may or may not have been the Listing and/or Selling Agent.

  • nearby properties

  • learn more about this property

Submit
Validating Captcha