Santa Cruz, CA95062
| 4530 sqft | MLS# ML82038869
Tract:
For Sale $3,800,000
Description
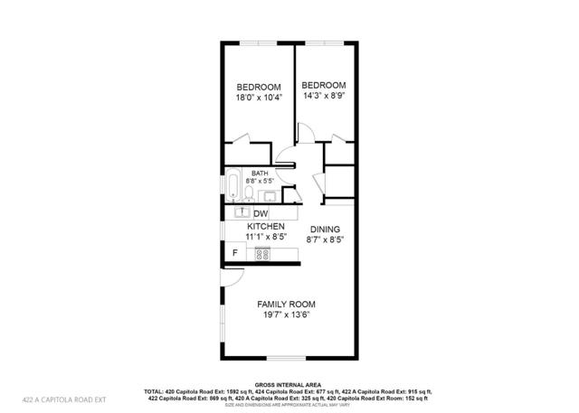
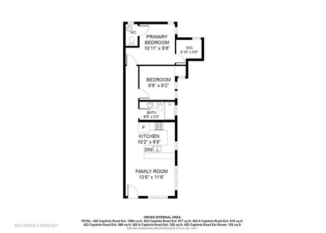
Turnkey multi-unit investment opportunity in a convenient Midtown Santa Cruz location. The property features five residential units across three structures plus a vacant rear portion of the parcel offering potential for future development. Unit mix includes a 3BR/2BA single-family home (420 Capitola Rd Ext) with an attached studio (420A), a detached 1BR/1BA home (422), and a duplex with a 2BR/1BA unit (422A) and a 2BR/1.5BA unit (424) sharing one wall. Additional improvements include covered parking, a shared laundry area, and several accessory structures. The parcel is primarily designated Urban Medium Residential and zoned RM-4, providing potential flexibility for multi-family housing uses. Well located near Midtown Santa Cruz, Ocean Street, Downtown, and area beaches, with convenient access to shopping, dining, and commuter routes. The property has a strong rental history and currently operates as a solid five-unit income property with ample open space and long-term upside potential, including the possibility for future expansion or larger-scale development. Buyer to verify zoning, and development potential with appropriate government agencies.
Facts
| Built in 1950 | Lot Size: 40729.00 sqft | HOA Dues: $0/month
Features
Listing provided by Kasey Hinchman, David Lyng Real Estate
Based on information from California Regional Multiple Listing Service, Inc. as of March 21, 2026. This information is for your personal, non-commercial use and may not be used for any purpose other than to identify prospective properties you may be interested in purchasing. Display of MLS data is usually deemed reliable but is NOT guaranteed accurate by the MLS. Buyers are responsible for verifying the accuracy of all information and should investigate the data themselves or retain appropriate professionals. Information from sources other than the Listing Agent may have been included in the MLS data. Unless otherwise specified in writing, Broker/Agent has not and will not verify any information obtained from other sources. The Broker/Agent providing the information contained herein may or may not have been the Listing and/or Selling Agent.